4 bedroom property conversion for sale – Methodist Church, Main Street, Kirkby Malzeard, HG4 3RY -
Guide Price
£245,000
4 bedroom property conversion for sale – Methodist Church, Main Street, Kirkby Malzeard, HG4 3RY
Guide Price
£245,000
Availability: Sold STC
Property Type: Detached House, Residential Development
Property Features
- An impressive former Methodist Church benefiting from full planning permission
- For conversion to form a substantial four bedroom family home
- With private parking
- Enjoying a fabulous position at the heart of the popular rural village of Kirkby Malzeard
- Conveniently located between Pateley Bridge and Ripon.
Property Summary
An impressive former Methodist Church benefiting from full planning permission for conversion to form a substantial four bedroom family home with private parking enjoying a fabulous position at the heart of the popular rural village of Kirkby Malzeard conveniently located between Pateley Bridge and Ripon.
Location
The property is centrally located off Main Street in the desirable rural village of Kirkby Malzeard. The village provides limited services however the Cathedral city of Ripon is just 6 miles drive to the south east providing an excellent range of services and amenities.
Description
This impressive detached stone built former Methodist Church offers a rare and wonderful opportunity to create a family home of real character in the heart of this most desirable rural village.
North Yorkshire Council granted full planning permission for the conversion and partial demolition of the Methodist Church to form a single dwelling including the installation of solar panels and the formation of a parking area. The sympathetic scheme prepared by the planning & Development team at David Hill LLP was approved on the 11th September 2025, Decision No: 25/02568/FUL.
NOTE The approved development is potentially liable under the community infrastructure Levy (CIL), payment of which will be the responsibility of the purchaser.
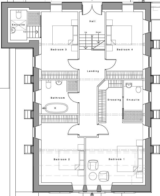
The approved scheme provides generous four bedroom accommodation laid out over two floors which briefly comprises the following;
The property is entered at the front into an impressive open plan kitchen/dining/living space with a separate office to one side. A central hall with return staircase and half landing to the first floor gives access to s separate living room/snug and a generous utility with separate cloakroom and w.c. with store.
From the half landing external doors give access to the private parking area at the rear. The first floor central landing gives way to four generous double bedrooms and a house bathroom. The master bedroom is served by an en-suite and a dressing area with bedroom 3 also having an en-suite and space for built in wardrobes. The two remaining bedrooms both have space for built in wardrobes.
Total Approximate Gross Internal Floor Area 211.5 sqm (2,276 sqft)
Outside, the approved scheme allows for the demolition of the rear two sections of building adjoining the main church building to provide private parking and gardens.
The formal front garden area with steps and railing topped stone wall are to be retained.
Services
We understand the property is connected to mains electricity, mains drainage and mains water.
Tenure
Freehold
Viewing
Strictly by appointment through the selling agents.
Community Infrastructure Levy (CIL)
The approved development is potentially liable for CIL payment which will be the responsibility of the purchaser.
Directions
From Ripon head north west on Kirkby Road continuing for about 6 miles to the village of Kirkby Malzeard. The Methodist Church can be found on the left directly opposite Manor Crescent. A David Hill for sale sign has been erected.
Location
The property is centrally located off Main Street in the desirable rural village of Kirkby Malzeard. The village provides limited services however the Cathedral city of Ripon is just 6 miles drive to the south east providing an excellent range of services and amenities.
Description
This impressive detached stone built former Methodist Church offers a rare and wonderful opportunity to create a family home of real character in the heart of this most desirable rural village.
North Yorkshire Council granted full planning permission for the conversion and partial demolition of the Methodist Church to form a single dwelling including the installation of solar panels and the formation of a parking area. The sympathetic scheme prepared by the planning & Development team at David Hill LLP was approved on the 11th September 2025, Decision No: 25/02568/FUL.
NOTE The approved development is potentially liable under the community infrastructure Levy (CIL), payment of which will be the responsibility of the purchaser.
The approved scheme provides generous four bedroom accommodation laid out over two floors which briefly comprises the following;
The property is entered at the front into an impressive open plan kitchen/dining/living space with a separate office to one side. A central hall with return staircase and half landing to the first floor gives access to s separate living room/snug and a generous utility with separate cloakroom and w.c. with store.
From the half landing external doors give access to the private parking area at the rear. The first floor central landing gives way to four generous double bedrooms and a house bathroom. The master bedroom is served by an en-suite and a dressing area with bedroom 3 also having an en-suite and space for built in wardrobes. The two remaining bedrooms both have space for built in wardrobes.
Total Approximate Gross Internal Floor Area 211.5 sqm (2,276 sqft)
Outside, the approved scheme allows for the demolition of the rear two sections of building adjoining the main church building to provide private parking and gardens.
The formal front garden area with steps and railing topped stone wall are to be retained.
Services
We understand the property is connected to mains electricity, mains drainage and mains water.
Tenure
Freehold
Viewing
Strictly by appointment through the selling agents.
Community Infrastructure Levy (CIL)
The approved development is potentially liable for CIL payment which will be the responsibility of the purchaser.
Directions
From Ripon head north west on Kirkby Road continuing for about 6 miles to the village of Kirkby Malzeard. The Methodist Church can be found on the left directly opposite Manor Crescent. A David Hill for sale sign has been erected.




































