‘The Nissen’, Ilkley Road, Riddlesden, BD20 5RA
£295,000
Availability: For Sale
Property Type: Barn Conversion, Residential Development Plot
Property Features
- An exciting opportunity for those seeking a ‘Grand Designs’ project
- Comprising a substantial Nissen style building
- Having Prior Approval for conversion to create a unique five bedroom contemporary residence
- Pleasant rural position between Riddlesden and West Morton
- With stunning views across the Aire Valley
- Yet convenient for access to the larger local centres
- Up to 9.62 acres of additional land available separately
Make Enquiry
Make Enquiry
Please complete the form below and a member of staff will be in touch shortly.
Property Summary
An exciting opportunity for those seeking a ‘Grand Designs’ project, comprising a substantial Nissen style building having Prior Approval for conversion to create a unique five bedroom contemporary residence.
Pleasant rural position between Riddlesden and West Morton with stunning views across the Aire Valley, yet convenient for access to the larger local centres.
Up to 9.62 acres of additional land available separately.
Location
The Property is located above the village of Riddlesden on its northern edge with direct access from Ilkley Road. Riddlesden and the neighbouring larger towns of Keighley and Bingley offer a comprehensive range of services and amenities including excellent links by both road and rail with the nearby railway station at Crossflatts providing regular services to Skipton, Bradford and Leeds. Leeds-Bradford Airport is just 12 miles to the east at Yeadon.
Description
This extremely interesting opportunity comprises a substantial Nissen building which is set back a short distance from Ilkley Road being accessed via a private track. The building enjoys a slightly elevated setting bordering open countryside with fabulous far reaching views across the Aire Valley.
Prior Approval for the conversion of this unusual building to form a substantial five bedroom residence was granted by Bradford Metropolitan Borough Council on 08 January 2025 under Application Reference 24/04454/PAR. Full details and plans can be found on the local authority website.
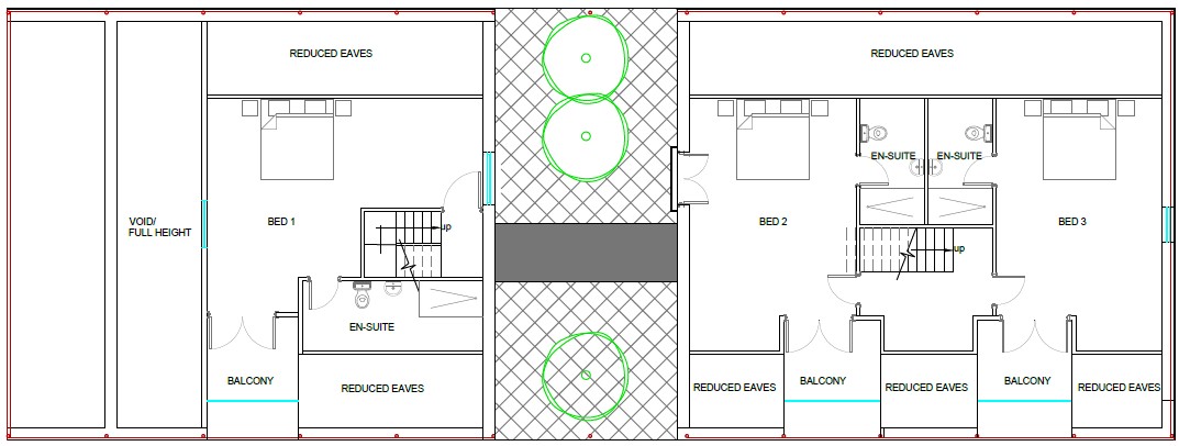
The imaginative proposal provides accommodation over two floors with the building split by a feature covered courtyard garden area with the two parts linked by a glazed central passage on the ground floor. Integral garaging has been incorporated at the north west end with a decked seating area set back within the south eastern gable.
The approved scheme provides the following accommodation:
Ground Floor: Entrance lobby, bathroom, bedrooms 4 & 5, access to integral garage. Glazed link to open plan kitchen/living/dining. Utility.
First Floor: Bedroom 1 (en suite), balcony. Bedroom 2 (en suite), balcony. Bedroom 3 (en suite), balcony.
Approximate Total gross Internal Floor Area (excluding garage): 275m² (2960 ft² ).
Outside
The approved scheme provides a private drive from Ilkley Road opening into a parking and turning area in front of the garage. Landscaped gardens are approved to extend along the north east elevation and there is a decked area to the south east gable.
Additional Land
There is up to 3.89 hectares (9.62 acres) of adjoining meadow and pasture extending to the south and east of the building shown edged blue on the sale plan. The additional land is available for sale by separate negotiation but will be subject to the vendors reserving access to any retained land.
In the event of the additional land being sold, the new boundary fences required between points AB and CD will be the responsibility of the purchasers to erect and thereafter maintain.
Services
There are no services connected to the site. Prospective purchasers are responsible for making their own enquiries.
Tenure
Freehold. Vacant possession on completion.
Wayleaves, Easements and Rights of Way
The land is sold subject to all wayleaves, easements and rights of way both public and private which might affect the land.
Directions
From the roundabout on the A650 at Victoria Park in Keighley take the exit onto Bradford Road (B6265) and continue for about 1 km to the traffic lights at East Riddlesden Hall and turn left onto Granby Lane. Continue on Granby Lane over the canal bridge and follow the sharp bend round to the left onto Banks Lane. Continue on Banks Lane for about 450 metres before turning right onto Ilkley Road. Continue on Ilkley Road for about 450 metres where the property can be found on the right just after leaving the houses on the edge of the village. A for sale sign has been erected at the buildings.
Joint Agents
Linley & Simpson, Harrogate
Pleasant rural position between Riddlesden and West Morton with stunning views across the Aire Valley, yet convenient for access to the larger local centres.
Up to 9.62 acres of additional land available separately.
Location
The Property is located above the village of Riddlesden on its northern edge with direct access from Ilkley Road. Riddlesden and the neighbouring larger towns of Keighley and Bingley offer a comprehensive range of services and amenities including excellent links by both road and rail with the nearby railway station at Crossflatts providing regular services to Skipton, Bradford and Leeds. Leeds-Bradford Airport is just 12 miles to the east at Yeadon.
Description
This extremely interesting opportunity comprises a substantial Nissen building which is set back a short distance from Ilkley Road being accessed via a private track. The building enjoys a slightly elevated setting bordering open countryside with fabulous far reaching views across the Aire Valley.
Prior Approval for the conversion of this unusual building to form a substantial five bedroom residence was granted by Bradford Metropolitan Borough Council on 08 January 2025 under Application Reference 24/04454/PAR. Full details and plans can be found on the local authority website.
The imaginative proposal provides accommodation over two floors with the building split by a feature covered courtyard garden area with the two parts linked by a glazed central passage on the ground floor. Integral garaging has been incorporated at the north west end with a decked seating area set back within the south eastern gable.
The approved scheme provides the following accommodation:
Ground Floor: Entrance lobby, bathroom, bedrooms 4 & 5, access to integral garage. Glazed link to open plan kitchen/living/dining. Utility.
First Floor: Bedroom 1 (en suite), balcony. Bedroom 2 (en suite), balcony. Bedroom 3 (en suite), balcony.
Approximate Total gross Internal Floor Area (excluding garage): 275m² (2960 ft² ).
Outside
The approved scheme provides a private drive from Ilkley Road opening into a parking and turning area in front of the garage. Landscaped gardens are approved to extend along the north east elevation and there is a decked area to the south east gable.
Additional Land
There is up to 3.89 hectares (9.62 acres) of adjoining meadow and pasture extending to the south and east of the building shown edged blue on the sale plan. The additional land is available for sale by separate negotiation but will be subject to the vendors reserving access to any retained land.
In the event of the additional land being sold, the new boundary fences required between points AB and CD will be the responsibility of the purchasers to erect and thereafter maintain.
Services
There are no services connected to the site. Prospective purchasers are responsible for making their own enquiries.
Tenure
Freehold. Vacant possession on completion.
Wayleaves, Easements and Rights of Way
The land is sold subject to all wayleaves, easements and rights of way both public and private which might affect the land.
Directions
From the roundabout on the A650 at Victoria Park in Keighley take the exit onto Bradford Road (B6265) and continue for about 1 km to the traffic lights at East Riddlesden Hall and turn left onto Granby Lane. Continue on Granby Lane over the canal bridge and follow the sharp bend round to the left onto Banks Lane. Continue on Banks Lane for about 450 metres before turning right onto Ilkley Road. Continue on Ilkley Road for about 450 metres where the property can be found on the right just after leaving the houses on the edge of the village. A for sale sign has been erected at the buildings.
Joint Agents
Linley & Simpson, Harrogate



























